Porzione di bifamiliare in vendita

Bagnatica, Via Giovanni Pascoli
€ 349.000
6 locali 6 locali
300 Mq 300 Mq
2 bagni 2 bagni

Porzione di bifamiliare in vendita

Bagnatica, Via Giovanni Pascoli

Descrizione annuncio

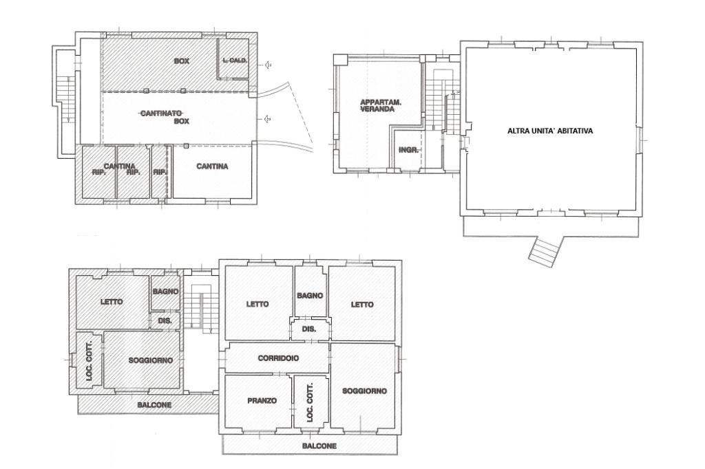
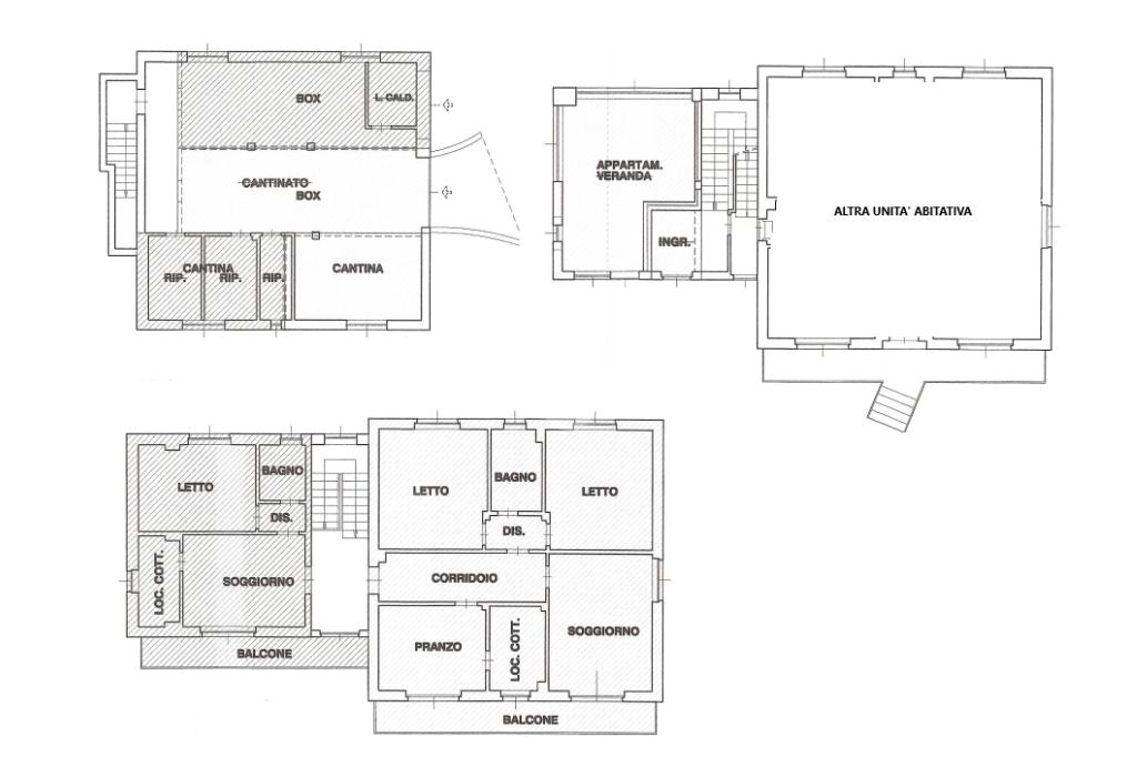
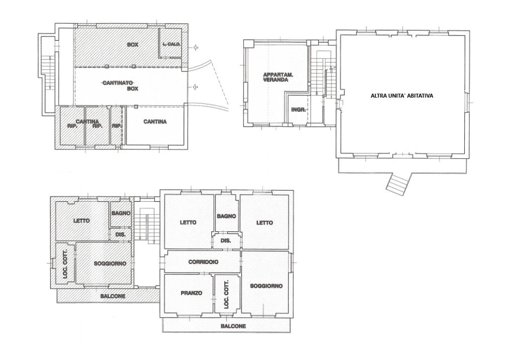
Proponiamo nel comune di Bagnatica una villa bifamiliare anni 70' ma parzialmente ristrutturata, disposta su piano terra, primo ed interrato, la struttura, appartenente alla categoria civile, offre ampi spazi abitativi che possono essere personalizzati secondo le proprie esigenzesono, si premette che sono stati rifatti impianti elettrici ed idraulici nel 2007.

Dispone di accesso pedonale e carrale autonomo, al piano terra oltre all'ampio giardino ed area esclusiva di ca. 500 mq, troviamo un locale ripostiglio di ca 40 mq, con possibilità di ampliamento di altri 35 mq. Il vano scala privato conduce alle altre due unità abitative sviluppate al piano primo, un bilocale di ca. 65 mq composto da soggiorno con cucinotto, camera e bagno; ed un trilocale di ca. 110 mq composto da ampio corridoio all'ingresso, sala pranzo con cucinotto, soggiorno, due camere e bagno, servito da una balconata.

Nell'interrato si trova un locale autorimesse e cantine per ben 110 mq, dove si possono parcheggiare ben 5 auto.

La posizione dell'immobile consente di godere della tranquillità del contesto residenziale di Bagnatica, pur rimanendo ben collegati ai principali servizi e vie di comunicazione. Questa soluzione abitativa rappresenta un'opportunità per chi cerca una residenza spaziosa e versatile, adatta a diverse esigenze familiari. Si presta ottimamente per un nucleo famigliare che necessità di 3 unità abitative o due appartamenti più uno studio.

Mostra tutto

Nelle vicinanze

Trasporto pubblico Trasporto pubblico
Montello-Gorlago
Montello-Gorlago
2,7 Km
Trasporto pubblico
1,4 Km
1115
1115
2,7 Km
Albano Sant’Alessandro
Albano Sant’Alessandro
2,3 Km
Ricariche auto elettriche Ricariche auto elettriche
Municipio di Bagnatica
450 m
G.M.B.
2,3 Km
FCS Municipio di Albano
2,7 Km
Scuole Scuole
Mensa scolastica
1,2 Km
Scuola secondaria di primo grado "Aldo Moro"
1,3 Km
Scuola primaria "Don Martinelli"
1,4 Km
Scuole
1,4 Km
Scuola Elementari
1,6 Km
Farmacia Farmacia
Bianconi
1,3 Km
Farmacia
2,2 Km
Farmacia Mortari
2,5 Km
Supermercati Supermercati
Supermercati
2,2 Km
Eurospin
2,5 Km
Negozi Negozi
Negozi
2,2 Km
Bar Bar
67
340 m
Bar La Torre
1,3 Km
Bar
2,5 Km
Ristoranti Ristoranti
Ristorante La Vacherie
510 m
Cascina dei Frati
610 m
Tomenone rist. pizz.
690 m
Ristoranti
1,3 Km
Da Vittorio
1,6 Km
Mostra tutto

Caratteristiche

Rif.:
61199986
Piano:
1 di 2 (Piano terra)
Box:
5
Posti auto:
6
Balconi:
2
Camere da letto:
4
Mostra tutto
Prezzo Prezzo
€ 349.000
Rata mutuo Rata mutuo
€ 1.665 / mese
Proponi il tuo prezzoProponi il tuo prezzo

Classe Energetica

Questo immobile è esente da classe energetica
Anno di costruzione:
1970
Riscaldamento:
Autonomo
Tipo impianto:
A radiatori
Tipo alimentazione:
Metano

Ti interessa visionare l'immobile?

Fissa un appuntamento  Fissa un appuntamento

Richiedi informazioni

Clicca su Leggi per aprire l'informativa
* Questi campi sono obbligatori

Calcola il tuo mutuo

Semplice e senza impegno
Anticipo

( % )
Mutuo

( % )

pochi semplici passi

inserisci i tuoi dati
Questionario completato
Grazie per aver richiesto un appuntamento senza impegno con un nostro Consulente del Credito e Assicurativo.

Hai inserito correttamente tutti i dati necessari e a breve riceverai una e-mail con un link da convalidare per inviare i tuoi dati.
Affiliato
Immobiliare Palazzolo Sas
Via Bagnatica, 35 24060 Brusaporto (BG)

Il nostro staff


  • Massimo Zanotti
    Affiliato
Via Bagnatica, 35 24060 Brusaporto (BG)
Zona: Brusaporto-Bagnatica-Costa di Mezzate-Montello
Mostra su mappa
Orari: lun-mar-mer-gio-ven: 9.00-12:30 14.00-19.00 sab: 9.00-12.30 14.00-16.00
Affiliato
Immobiliare Palazzolo Sas
Via Bagnatica, 35 24060 Brusaporto (BG)

2026 Tecnocasa Franchising S.p.A. - P. IVA 08365160152 - Via Monte Bianco 60/A 20089 Rozzano (MI). Ogni agenzia ha un proprio titolare ed è autonoma. Privacy policy | Policy utilizzo | Cookie policy